|
|
|
|
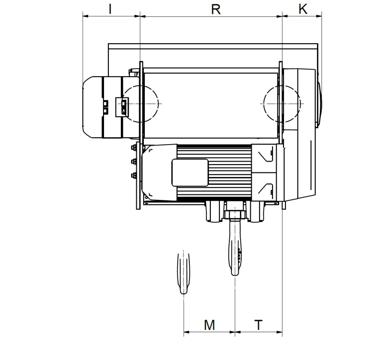
Maße GM 800:
|
Hakenweg [m] |
Einscherung |
Länge (A) [mm] |
Länge (B) [mm] |
Breite (I + R + K) [mm] |
Radstand (R) [mm] |
Hakenmaß (C) [mm] |
Vergrößerung Hakenmaß [mm] |
|
6 |
4/1 |
416 |
646 |
720 |
438 |
427 |
45 |
|
9 |
4/1 |
416 |
646 |
872 |
590 |
427 |
45 |
|
12 |
2/1 |
416 |
646 |
720 |
438 |
540 |
40 |
|
18 |
2/1 |
416 |
646 |
872 |
590 |
540 |
40 |
Das angegebene Hakenmaß (C) bezieht sich auf eine
Flanschbreite (N) von 300 mm.
Bei abweichender Flanschbreite: Je 50 mm
zusätzlicher Flanschbreite nimmt das Hakenmaß (C) um die angegebene Vergrößerung
zu..
Maße GM 1000:
|
Hakenweg [m] |
Einscherung |
Länge (A) [mm] |
Länge (B) [mm] |
Breite (I + R + K) [mm] |
Radstand (R) [mm] |
Hakenmaß (C) [mm] |
Vergrößerung Hakenmaß [mm] |
|
6 |
4/1 |
438 |
645 |
789 |
507 |
500 |
45 |
|
9 |
4/1 |
438 |
645 |
959 |
677 |
500 |
45 |
|
12 |
2/1 |
438 |
645 |
789 |
507 |
567 |
40 |
|
18 |
2/1 |
438 |
645 |
959 |
677 |
567 |
40 |
Das angegebene Hakenmaß (C) bezieht sich auf eine
Flanschbreite von 300 mm.
Bei abweichender Flanschbreite: Je 50 mm
zusätzlicher Flanschbreite nimmt das Hakenmaß (C) um die angegebene Vergrößerung
zu.
Gewichte:
|
Hakenweg [m] |
Einscherung |
GM 800 |
GM 1000 |
|
6 |
4/1 |
266 |
335 – 343 |
|
9 |
4/1 |
289 |
360 – 368 |
|
12 |
2/1 |
256 |
328 – 336 |
|
18 |
2/1 |
278 |
353 – 361 |
Das Gewicht in Standardausführung ist abhängig von der Ausführung des Hubmotors.
Belastungsangaben:
Die Belastungsangaben des Seilzugs können bei Bedarf als Datenblatt bei ABUS angefordert werden. Siehe ABUS-Service.
Elektrische Daten vierpoliger Hubantrieb GM 800 mit Frequenzumrichter:
|
Ausführung Hubmotor |
Leistung |
Einschaltdauer [%] |
Schalthäufigkeit [c/h] |
Nennstrom [A] |
Cos Phi |
|
H |
4,9 |
60 |
360 |
13,5 |
0,97 |
|
H |
4 |
60 |
360 |
10,8 |
0,97 |
|
H |
3,2 |
60 |
360 |
8,6 |
0,97 |
|
H |
2,5 |
60 |
420 |
6,9 |
0,97 |
|
H |
2,0 |
60 |
420 |
5,5 |
0,97 |
Elektrische Daten vierpoliger Hubantrieb GM 1000 mit Frequenzumrichter:
|
Ausführung Hubmotor |
Leistung |
Einschaltdauer [%] |
Schalthäufigkeit |
Nennstrom |
Cos Phi |
|
H |
4,9 |
60 |
360 |
13,5 |
0,97 |
|
H |
4 |
60 |
420 |
10,8 |
0,97 |
|
H |
3,2 |
60 |
420 |
8,6 |
0,97 |
|
H |
2,5 |
60 |
420 |
6,9 |
0,97 |
Elektrische Daten von polschaltbaren Hubantrieben siehe separates Dokument „Technische Daten“ des entsprechenden Hubantriebs.
Elektrische Daten Fahrantrieb mit Frequenzumrichter:
|
Leistung |
Einschaltdauer |
Schalthäufigkeit |
Drehzahl |
Nennstrom |
Fahrgeschwindigkeit max [m/min] |
Cos phi n |
|
0,27 |
60 |
240 |
1550 |
1,6 |
20 |
0,97 |
Umgebungsbedingungen bei Betrieb:
|
|
|
|
Umgebungstemperatur (für normalen Betrieb) |
-10 °C bis +40 °C |
|
Umgebungstemperatur (bei verringerter Einschaltdauer) |
+40 °C bis +65 °C |
|
Gehäuse |
IP 55 |
|
Isolationsklasse |
F |
Geräuschemission:
|
Baugröße |
Schalldruckpegel LP, m dB(A) in 4 m Abstand |
Schallleistungspegel LW, m dB(A) |
|
GM 800 |
62 |
82 |
|
GM1000 |
64 |
84 |
Tabelle: Geräuschemissionen in Anlehnung an DIN 45635, Teil 61 nach dem Substitutionsverfahren mit einer Schallleistungsquelle
In der Tabelle ist der Schalldruckpegel LP in einem Abstand von 4 m vom Seilzug angegeben. Mit dem Schallleistungspegel LW kann der Schalldruckpegel für beliebige Entfernungen berechnet werden.