Setting switching points for backup limiter and top hoist limiter

 

The wire rope hoist has a gear limit switch with three switching points.

The switching points for the top hoist limiter and the backup limiter placed above it are set and sealed at the factory.

If required, (e.g. if the load hook cannot be run right up to the top due to a crosshead), after changing the wire rope or after repairs, the switching point for the top hoist limiter may need to be reset.

 

 

Determining switching points

Backup limiter switching point C1

 

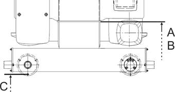
Hook headroom (dimension C)

Top hoist limiter switching point C2

 

 

─     The hook headroom (dimension C) is principally the highest position that the load hook may travel to without damaging the wire rope. A certain safety buffer is factored into this.

─     The hook headroom (dimension C) is always the distance between the lower edge of the wheel on the wire rope hoist and the inner edge of the load hook.

─     The hook headroom (dimension C) always refers to a standard series load hook. In the case of larger or smaller load hooks, see the wire rope data sheet for details of the hook headroom.

─     The switching point for the backup limiter is designated as C1 and lies slightly above the hook headroom. This is the absolute uppermost position up to which the load hook may move without damaging the wire rope.

─     The switching point for the top hoist limiter is designated as C2 and lies slightly below the hook headroom.

─     Both switching points (C1 and C2) each have two additional reference edges: A1 and A2 (distance between the lower edge of the wheel on the wire rope hoist and the axis of the deflection rollers on the bottom block) as well as B1 and B2 (distance between the lower edge of the wheel on the wire rope hoist and the upper edge of the bottom block). These additional dimensions can be used as an alternative to the hook headroom and can make measuring easier. They are also independent of the load hook size and can thus be used with smaller or larger load hooks.

 

 

Warnung stürzende Last

Danger due to a suspended load falling!

In certain situations it can be necessary to enlarge the hook headroom to enable the load hook to brake more quickly (e.g. so that a crosshead cannot crash under the main girder or lifting tackle on the main girder are not broken open).

Always carry out and heed a hazard analysis on site!

 

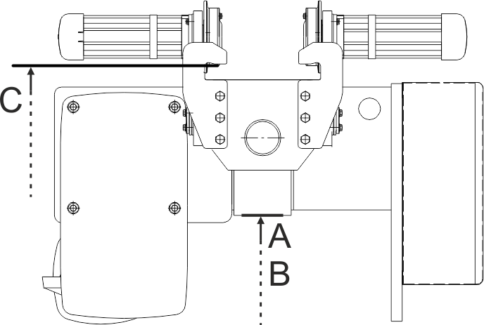
*   Select the appropriate reference edge on the wire rope hoist and on the bottom block from the following drawing.

*   Read the dimensions C1 and C2, or alternatively A1 and A2 or B1 and B2, from the following table.

 

Reference edges on the wire rope hoist according to type:

Reference edge for dimensions A, B and C on wire rope hoist E.

 

Reference edge for dimensions A, B and C on wire rope hoist S.

 

Reference edge for dimensions A, B and C on wire rope hoist U.

 

Reference edge for dimensions A, B and C on wire rope hoist D.

 

Reference edge for dimensions A, B and C on wire rope hoist DA.

 

Reference edge for dimensions A, B and C on wire rope hoist DQA.

 

Reference edge for dimensions A, B and C on wire rope hoist Z.

 

Reference edges on the bottom block:

Hook headroom

Backup limiter switching point

Bottom hoist limiter switching point

Top hoist limiter switching point

 

Fundamentally:

─     146 rotations of the adjusting screw completely rotate the control cam on the gear limit switch 360° once.

─     How many millimetres of hook path correspond to one rotation of the adjusting screw is specified in the following table.

─     Rotating the adjusting screw to the right moves the switching point downwards, rotating the adjusting screw to the left moves the switching point upwards.

─     How many millimetres of hook path the load hook travels in the dead range of the Microswitch (switching hysteresis) is specified in the following table.

 

 

 

 

 

 

Backup limiter
switching point

Top hoist limiter
switching point

Dead range (switching hysteresis)

Hook path per rotation of the adjusting screw

Type

Size

Reeving

Track gauge [mm]

Hook headroom
(dimension C) [mm]

A1 [mm]

B1 [mm]

C1 [mm]

A2 [mm]

B2 [mm]

C2 [mm]

E

800

4/1

Up to 300

400

165

70

380

215

120

430

55

71

E

1000 *

2/1

Up to 300

567

210

105

525

310

205

625

120

154

E

1000 *

4/1

Up to 300

500

230

125

480

279

175

530

60

77

E

2000

2/1

Up to 300

580

180

70

540

280

170

640

130

172

E

2000

4/1

Up to 300

500

195

80

480

245

130

530

65

86

E

3000

2/1

Up to 300

664

215

70

625

315

170

734

160

214

E

3000

4/1

Up to 300

580

235

90

560

285

140

610

80

107

E

5000

2/1

Up to 350

830

295

110

790

395

210

890

178

238

E

5000

4/1

Up to 350

825

375

190

805

425

240

855

89

119

E

6000

2/1

Up to 350

830

295

110

790

395

210

890

194

260

Table: Hook headroom for wire rope hoists of type E. With larger track gauges please heed the following!

 

* The specified values apply for the GM 1000 compact and for the GM 1000 modular. The values are identical for both designs.

 

Only with E-design wire rope hoist with larger track gauge

This section only applies to wire rope hoists of the design "E" with a larger track gauge than given in the table above.

 

Calculating larger hook headroom

The hook headroom has to be enlarged as of a certain track gauge.

 

*   Add the additional dimension from the above table to the hook headroom.

 

Track gauge

Installation size 800
Reeving 4/1

Installation size 1000
Reeving 2/1

Installation size 1000
Reeving 4/1

Installation size 2000
Reeving 2/1

Installation size 2000
Reeving 4/1

Installation size 3000
Reeving 2/1

Installation size 3000
Reeving 4/1

Installation size 5000
Reeving 2/1

Installation size 5000
Reeving 4/1

Installation size 6000
Reeving 2/1

300

0

0

0

0

0

0

0

-

-

-

350

49

39

45

43

53

62

80

0

0

0

400

98

78

89

86

106

124

160

76

74

76

450

146

117

134

129

159

187

240

152

148

152

500

195

156

178

172

212

249

320

228

222

228

550

-

-

-

-

265

311

401

304

296

304

600

-

-

-

-

318

373

481

380

370

380

650

-

-

-

-

371

435

561

456

444

456

700

-

-

-

-

424

498

641

532

518

532

 

 

 

 

 

 

Backup limiter
switching point

Top hoist limiter
switching point

Dead range (switching hysteresis)

Hook path per rotation of the adjusting screw

Type

Size

Reeving

Hook headroom
(dimension C) [mm]

A1 [mm]

B1 [mm]

C1 [mm]

A2 [mm]

B2 [mm]

C2 [mm]

S

800

4/1

343

335

245

323

385

295

377

55

71

S

1000

4/1

420

420

315

400

470

365

450

60

77

S

2000

4/1

440

405

290

420

455

340

470

65

86

S

3000

2/1

699

520

370

659

620

470

760

160

214

S

3000

4/1

550

540

395

530

590

445

580

80

107

Table: Hook headroom for wire rope hoists of type S

 

 

 

 

 

 

 

Backup limiter
switching point

Top hoist limiter
switching point

Dead range (switching hysteresis)

Hook path per rotation of the adjusting screw

Type

Size

Reeving

Hook headroom
(dimension C) [mm]

A1 [mm]

B1 [mm]

C1 [mm]

A2 [mm]

B2 [mm]

C2 [mm]

U

5000

4/1

1132

270

80

1110

320

130

1160

89

119

U

6000

2/1

1256

235

50

1215

335

150

1315

194

260

U

6000

4/1

1241

260

70

1220

310

120

1270

97

130

U

7000

2/1

1615

330

90

1575

430

190

1675

254

342

Table: Hook headroom for wire rope hoists of type U

 

 

 

 

 

 

Backup limiter
switching point

Top hoist limiter
switching point

Dead range (switching hysteresis)

Hook path per rotation of the adjusting screw

Type

Size

Reeving

Track gauge [mm]

Hook headroom
(dimension C) [mm]

A1 [mm]

B1 [mm]

C1 [mm]

A2 [mm]

B2 [mm]

C2 [mm]

D

800

4/1

 

144

170

80

125

220

130

175

55

71

D

1000

4/1

 

195

190

85

175

240

135

225

60

77

D

2000

2/1

 

295

160

50

255

260

150

355

130

172

D

2000

4/1

 

215

175

60

195

225

110

245

65

86

D

3000

2/1

 

315

190

45

275

290

150

375

160

214

D130

3000

4/1

 

260

230

85

240

280

134

290

80

107

D160

3000

4/1

 

260

225

80

240

275

129

290

80

107

D

5000

2/1

 

440

240

50

400

340

150

500

178

238

D

5000

4/1

160

385

285

100

365

335

150

415

89

119

D

5000

4/1

200

385

305

120

 

355

170

 

 

 

D

5000

4/2

 

320

330

220

280

430

320

380

178

238

D

6000

2/1

 

520

235

50

480

335

150

580

194

260

D

6000

4/1

 

267

260

73

247

310

123

297

97

130

D

6000

6/1

 

606

355

168

586

405

218

636

65

87

D

7000

2/1

 

572

344

103

532

444

203

632

254

342

D

7000

4/1

 

501

380

139

481

430

189

531

127

171

D

7000

6/1

to 2000

717

520

280

690

570

330

745

85

114

D

7000

6/1

from 2000

897

520

280

875

570

330

925

85

114

D

7000

4/2

 

236

240

50

195

340

150

295

254

342

D

7000

8/2

 

516

260

70

495

310

120

545

127

171

Table: Hook headroom for wire rope hoists of type D

 

 

 

 

 

 

 

 

Backup limiter
switching point

Top hoist limiter
switching point

Dead range (switching hysteresis)

Hook path per rotation of the adjusting screw

Type

Size

Reeving

Hook headroom
(dimension C) [mm]

A1 [mm]

B1 [mm]

C1 [mm]

A2 [mm]

B2 [mm]

C2 [mm]

DA

800

4/1

429

170

80

410

220

130

460

55

71

DA

1000

4/1

520

190

85

500

240

135

550

60

77

DA

2000

2/1

621

160

50

580

260

150

681

130

172

DA

2000

4/1

544

175

60

520

225

110

570

65

86

DA

3000

2/1

700

193

45

660

290

145

760

160

214

DA

3000

4/1

620

225

80

600

275

130

650

80

107

DA

5000

2/1

825

240

50

785

340

150

885

178

238

DA

5000

4/1

813

285

100

795

335

150

845

89

119

DA160

6000

2/1

949

235

50

910

335

150

1010

194

260

DA200

6000

4/1

470

260

70

450

310

120

500

97

130

DA280

6000

4/1

832

260

70

810

310

120

860

97

130

DA280

6000

6/1

1068

352

165

1050

400

215

1100

65

87

DA200

7000

2/1

1284

345

105

1245

445

205

1345

254

342

DA

7000

4/1

913

375

135

895

425

185

943

127

171

DA

7000

6/1

1370

515

275

1350

565

325

1400

85

114

Table: Hook headroom for wire rope hoists of type DA

 

 

 

 

 

Backup limiter
switching point

Top hoist limiter
switching point

Dead range (switching hysteresis)

Hook path per rotation of the adjusting screw

Type

Size

Reeving

Hook headroom
(dimension C) [mm]

A1 [mm]

B1 [mm]

C1 [mm]

A2 [mm]

B2 [mm]

C2 [mm]

DQA

2000

2/1

525

125

10

485

225

110

585

130

172

DQA

2000

4/1

445

140

30

425

190

80

475

65

86

DQA

3000

2/1

639

190

40

600

290

140

700

160

214

DQA

3000

4/1

555

210

65

535

260

115

585

80

107

DQA

5000

2/1

810

275

90

770

375

190

870

178

238

DQA

5000

4/1

712

265

75

690

315

125

740

89

119

DQA

6000

2/1

870

335

150

830

435

250

930

194

260

DQA

6000

4/1

745

250

60

725

300

110

775

97

130

DQA350

7000

4/1

970

375

135

950

425

185

1000

127

171

Table: Hook headroom for wire rope hoists of type DQA

 

 

 

 

 

 

Backup limiter
switching point

Top hoist limiter
switching point

Dead range (switching hysteresis)

Hook path per rotation of the adjusting screw

Type

Size

Reeving

Track gauge [mm]

Hook headroom
(dimension C) [mm]

A1 [mm]

B1 [mm]

C1 [mm]

A2 [mm]

B2 [mm]

C2 [mm]

Z

5000

4/2

 

413

490

300

375

590

400

475

178

238

Z

5000

8/2

 

631

505

315

610

555

365

660

89

119

Z

6000

4/2

 

414

485

300

375

585

400

475

194

260

Z280

6000

8/2

 

638

450

310

620

550

360

670

97

130

Z350

6000

8/2

 

643

450

260

625

500

310

675

97

130

Z

7000

4/2

 

668

525

285

630

625

385

730

254

342

Z

7000

6/2

to 2000

717

522

281

697

572

331

747

170

228

Z

7000

6/2

from 2000

897

522

281

877

572

331

927

170

228

Z

7000

8/2

 

915

525

284

895

575

334

945

127

171

Z

7000

10/2

 

960

482

241

940

532

291

990

102

137

Z

7000

12/2

 

1378

761

482

1358

811

532

1408

85

114

Table: Hook headroom for wire rope hoists of type Z

 

 

 

 

 

Backup limiter
switching point

Top hoist limiter
switching point

Dead range (switching hysteresis)

Hook path per rotation of the adjusting screw

Type

Size

Reeving

Hook headroom
(dimension C) [mm]

A1 [mm]

B1 [mm]

C1 [mm]

A2 [mm]

B2 [mm]

C2 [mm]

ZA

5000

8/2

1195

495

305

1175

545

355

1225

89

119

ZA280

6000

8/2

1253

495

305

1235

545

355

1285

97

130

ZA350

6000

8/2

1163

445

255

1145

495

305

1195

97

130

ZA

7000

6/2

1370

515

275

1350

565

325

1400

170

228

ZA

7000

8/2

1430

515

275

1410

565

325

1460

127

171

ZA

7000

10/2

1312

480

240

1290

530

290

1340

102

137

Table: Hook headroom for wire rope hoists of type ZA

 

 

 

 

Travelling to the backup limiter switching point

The backup limiter switching point may only be adjusted by a qualified person for service purposes.

 

 

Dimensions A1, B1, C1

*   Bypass top hoist limiter manually, so that the backup limiter can be travelled to.

*   Raise the load hook up to dimension A1, B1 or C1.

 

 

 

Only with gear limit switch "GGS"

 

Detaching seals

 

Seals

*   Open the housing cover of the electrical system housing on the cable drum.

*   Press the seals apart in the centre with a screwdriver and remove them.

 

 

Setting backup limiter

The backup limiter is set with the right adjusting screw.

 

White pointer of cam ring

Orange pointer

 

Right adjusting screw

*   Remove the adjusting key. It is fastened on two mounts on the gear limit switch.

Alternatively, a hexagon wrench key size 3.0 (ideally with rotary plate) can be used.

An electrically operated screwdriver may NOT be used.

*   Press the adjusting key into the adjusting screw. Press it into the adjusting screw with light pressure.

If necessary: Turn the adjusting screw until the white pointer of the cam ring lies to the left of the orange pointer. It should be neither to the right of the orange pointer nor exactly on it.

*   The middle white arrow shows the exact position of the switching point; the two white arrows to the left and right of it indicate the start and end of the switching phase (switching hysteresis).

*   If necessary: Turn the adjusting screw until the white pointer of the cam ring rotates clockwise. Continue turning until the white pointer lies exactly on the orange pointer and a clicking sound is audible.

─     Turning to the right shifts the switching point downward.

─     Turning to the left shifts the switching point upward.

 

 

●   The switching point for the backup limiter is now set.

ABUControl switches off the main conductor of the crane at this switching point. This switching point is only activated if the top hoist limiter has not switched (e.g. because it is faulty).

 

*   Turn the adjusting screw three-quarters of a turn to the left.

●   The microswitch switches again; the main contactor switches back on.

*   Lower the load hook slightly.

*   Turn the adjusting screw three-quarters of a turn back to the right.

 

 

Travelling to the switching point of the top hoist limiter

 

Dimensions A2, B2, C2

*   Move the load hook up to dimension A2, B2 or C2.

 

 

Setting top hoist limiter

The top hoist limiter is set with the middle adjusting screw.

 

White pointer of cam ring

Orange pointer

 

Middle adjusting screw

*   Remove the adjusting key. It is fastened on two mounts on the gear limit switch.

Alternatively, a hexagon wrench key size 3.0 (ideally with rotary plate) can be used.

An electrically operated screwdriver may NOT be used.

*   Press the adjusting key into the adjusting screw. Press it into the adjusting screw with light pressure.

If necessary: Turn the adjusting screw until the white pointer of the cam ring lies to the left of the orange pointer. It should be neither to the right of the orange pointer nor exactly on it.

*   The middle white arrow shows the exact position of the switching point; the two white arrows to the left and right of it indicate the start and end of the switching phase (switching hysteresis).

*   If necessary: Turn the adjusting screw until the white pointer of the cam ring rotates clockwise. Continue turning until the white pointer lies exactly on the orange pointer and a clicking sound is audible.

─     Turning to the right shifts the switching point downward.

─     Turning to the left shifts the switching point upward.

 

 

●   The switching point for the highest hook position is now set.

At this switching point the load hook stops during normal operation after it has previously braked. The braking distance is automatically determined by ABUControl in the next step.

 

 

 

 

 

Only with "Kübler" gear limit switch

 

Setting backup limiter

The backup limiter is set with the backmost adjusting screw.

 

Control cam

Microswitch

Adjusting screw

 

*   If necessary: Turn the adjusting screw until the control cam is to the left of the Microswitch. It should not be either directly on or to the right of the microswitch.

*   Turn the adjusting screw to the right until the control cam presses in a clockwise direction against the Microswitch and an audible click is heard.

●   ABUControl switches off.

●   The switching point for the backup limiter is now set.

ABUControl switches off the main conductor of the crane at this switching point. This switching point is only activated if the top hoist limiter has not switched (e.g. because it is faulty).

 

 

Adjusting screw

 

*   Turn the adjusting screw three-quarters of a turn to the left.

●   The Microswitch switches again, ABUControl switches on again.

*   Lower the load hook slightly.

*   Turn the adjusting screw three-quarters of a turn back to the right.

 

 

Travelling to the switching point of the top hoist limiter

 

Dimensions A2, B2, C2

*   Move the load hook up to dimension A2, B2 or C2.

 

 

Setting top hoist limiter

The top hoist limiter is set with the adjusting screw second from the back.

 

Adjusting screw

 

Control cam

Microswitch

*   If necessary: Turn the adjusting screw until the control cam is to the left of the Microswitch. It should not be either directly on or to the right of the microswitch.

*   Turn the adjusting screw to the right until the control cam presses in a clockwise direction against the Microswitch and an audible click is heard.

●   The switching point for the highest hook position is now set. At this switching point the load hook stops during normal operation after it has previously braked. The braking distance is automatically determined by ABUControl in the next step.

 

 

 

 

 

Determining braking distance

In normal operation, the load hook brakes at a slow lifting speed before it stops at the highest hook position.

The braking distance is also determined automatically by ABUControl.

 

*   Raise the load hook without load a few metres downwards.

*   Lower the load hook with fast lifting speed upwards.

●   At the highest hook position, the load hook halts.

Depending on how the switching point was changed, it may be that the load hook with fast lifting speed moves to the switching point and then suddenly stops there or that the load hook brakes earlier than is necessary and a long stretch moves only at slow lifting speed.

If the load hook has to travel a long way at slow lifting speed, the end position of the brake phase can be changed manually. See Temporarily changing the end position of the brake phase of the hoist drive  ‚ [2].

●   ABUControl saves the new switching point of the highest hook position automatically and now calculates the necessary braking distance automatically.

 

 

During the next travel to the switching point:

●   The load hook brakes (depending on the current lifting speed) shortly before the highest hook position at slow lifting speed.

●   The load hook only still travels with slow lifting speed immediately before the switching point.

●   The load hook stops at the switching point.

 

 

 

Checking the setting

*   Lower the load hook.

●   Lift the load hook at both slow and fast lifting speed and check whether it halts at the correct point.

 

 

Only with gear limit switch "GGS"

 

 

Sealing the adjusting screws

 

Seals

*   Insert seals (2x) onto the adjusting screws and press them in.